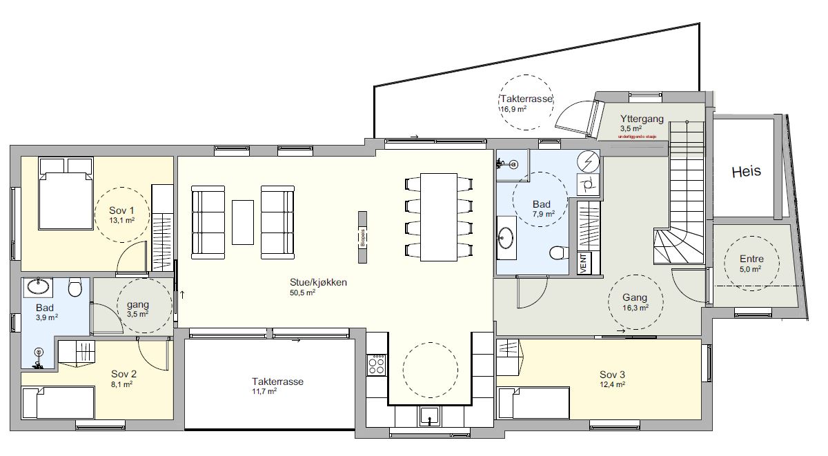
Leilighet H0401 Solgt
Etasje
4
Antall rom
4
BRA m²
131,9
P-rom m²
131,9
Balkong m²
11,7 + 16,9
Bod m²
5

Toppleiligheten i det rød bygget, er en romslig leilighet - med en stue/kjøkkenløsning på hele 50 kvm, hvor en biopeis vil være en flott romdeler mot spisestuen. Utgang til romslige takterrasser både mot sør og nord fra stue/spisestue.  To av soverommene ligger i egen fløy, tilknyttet eget bad - mens det tredje soverommet ligger i motsatt ende av leiligheten - ved bad/vaskerom. Leiligheten vil få utsikt mot både sør og nord - og vil se både hav og fjell - samt skue over bebyggelsen foran.