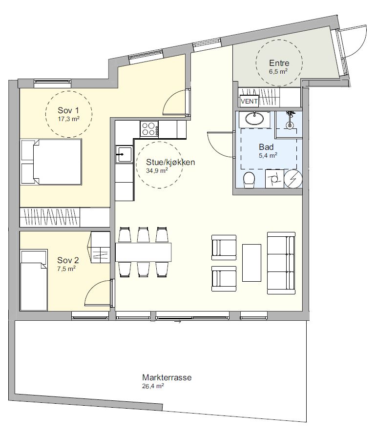
Leilighet H0204 Ledig
Etasje
2
Antall rom
3
BRA m²
74,9
P-rom m²
74,9
Balkong m²
26,4
Bod m²
5
Fellesgjeld
kr 2 760 000,-
Innskudd
kr 1 840 000,-
Felleskostnader
kr 16 355,-
Totalpris
kr 4 600 000,-
Totalpris ink. omk.
kr 4 619 101,-

Leiligheten ligger i 1. boligetasje på det rød bygget, og vil få en stor markterrasse mot syd med utgang fra stuen. En praktisk leilighet med store vindusflater mot syd, og mulighet for hjemmekontor i egen "fløy" på det største soverommet.