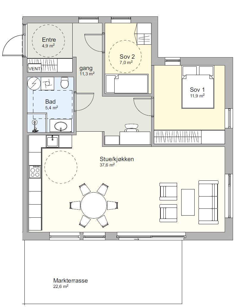
Leilighet H0101 Solgt
Etasje
1
Antall rom
3
BRA m²
81,2
P-rom m²
81,2
Balkong m²
22,6
Bod m²
5

Leiligheten ligger i 1. boligetasje i det gule bygget, og vil få en stor markterrasse mot syd med utgang fra stuen. Leiligheten har en romslig stue/kjøkkenløsning, 2 soverom og bad - i tillegg kan den ekstra plassen i gangen gjerne benyttes til hjemmekontor. Vindu mot øst gir stuen ekstra lys - og utsikt mot bebyggelsen i øvre bydel.